Teléfono
:+86 18924298409
Correo electrónico
:info@gftrusses.com
Solución de soporte de pared LED sobre el suelo para una mejor experiencia de visualización y un soporte confiable
Cuando las personas asisten a un evento en vivo, lo que realmente quieren es una visión clara de la pantalla.
En lugar de dejar la pared LED en el suelo, nuestra solución la eleva a la altura ideal. Este pequeño cambio tiene un gran impacto. Mejora los ángulos de visión tanto horizontal como vertical, permitiendo que más público tenga una visión clara. Al mismo tiempo, la estructura se mantiene sólida y estable, priorizando la seguridad durante todo el evento.
Por qué las paredes LED montadas en el suelo a veces no son suficientes
A través de conversaciones con organizadores de eventos y empresas de alquiler, hemos visto que los mismos desafíos surgen una y otra vez.
Estos desafíos aparecen una y otra vez en conciertos, festivales, eventos deportivos y producciones en gira, independientemente de la escala o la ubicación.
El enfoque de soporte de pared LED fuera del suelo
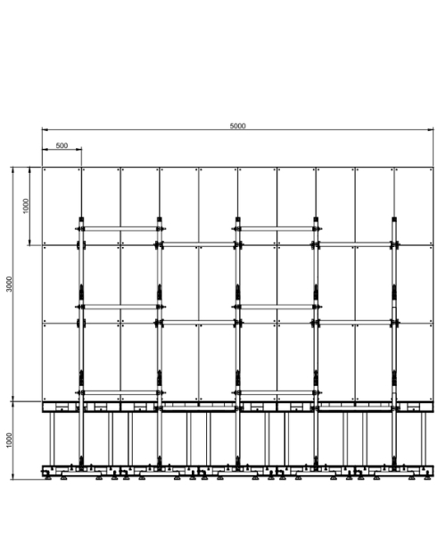
Para resolver estos problemas, desarrollamos un Estructura de soporte de pared LED elevada. La idea es simple: elevar la pantalla a la altura correcta. Pero hacerlo de forma segura, controlada y fiable. Los tubos de elevación elevados evitan que la pantalla LED quede demasiado baja, mientras que un marco interno reforzado dirige la carga uniformemente hasta los puntos de apoyo en el suelo. Al distribuir las fuerzas donde deben estar, la estructura se mantiene estable, incluso expuesta al viento, el movimiento o las vibraciones durante los eventos en vivo.
El material también juega un papel fundamental. El sistema está fabricado con una aleación de aluminio ligera y de alta resistencia, que ofrece la rigidez necesaria para soportar pantallas LED de tamaño mediano a grande sin añadir peso innecesario. El resultado es una estructura robusta, eficiente, fácil de montar en obra y rápida de desmontar, lo cual es especialmente importante para aplicaciones de alquiler y giras.

Beneficios clave de una solución de soporte de pared LED independiente del suelo
La primera gran ventaja es la experiencia de visualización mejorada.
La pared LED elevada proporciona a la audiencia un campo de visión más amplio y nítido para que más espectadores puedan observar el contenido en la pantalla en su totalidad.
Al mismo tiempo, la estructura ofrece un soporte fiable para pantallas LED de tamaño mediano a grande. El diseño modular de este sistema marca la diferencia. Agiliza el montaje y el desmontaje, ahorrando tiempo y mano de obra. Pero sus ventajas no acaban ahí. El sistema es altamente adaptable. Ya sea una pantalla principal en un festival de música o varias pantallas para una retransmisión deportiva, la estructura de soporte se puede ajustar para adaptarse perfectamente al recinto.
Probado en escenarios de eventos reales
Cada evento es único y no hay dos configuraciones exactamente iguales. Por eso, esta solución de soporte de pared LED elevada es flexible y se puede personalizar parcialmente para adaptarse a diversas necesidades del evento.
Tomemos como ejemplo un evento reciente en interiores. Mediante un sistema de soporte de pared LED elevado, cada pantalla se colocó a la altura ideal. Los espectadores de pie tuvieron una vista despejada y el público se sintió inmediatamente más conectado con la experiencia. Los organizadores quedaron encantados con los resultados y elogiaron cómo la solución brindó exactamente lo que necesitaban para un espectáculo fluido, inmersivo y atractivo.
Dejar un mensaje
Escanear a WhatsApp :
Hi! Click one of our members below to chat on